Emisión especial con De Havilland:
Perspectivas
técnicas
y operativas: Dentro de la plataforma Dash-8 para las misiones especiales de hoy en día
Regístrese en
Desestimar
Capacidades
A quién servimos
Acerca de
Carreras profesionales
Redacción
Su misión
Capacidades
A quién servimos
Acerca de
Carreras profesionales
Redacción
Su misión
Síguenos:
x
linkedin
Página de inicio
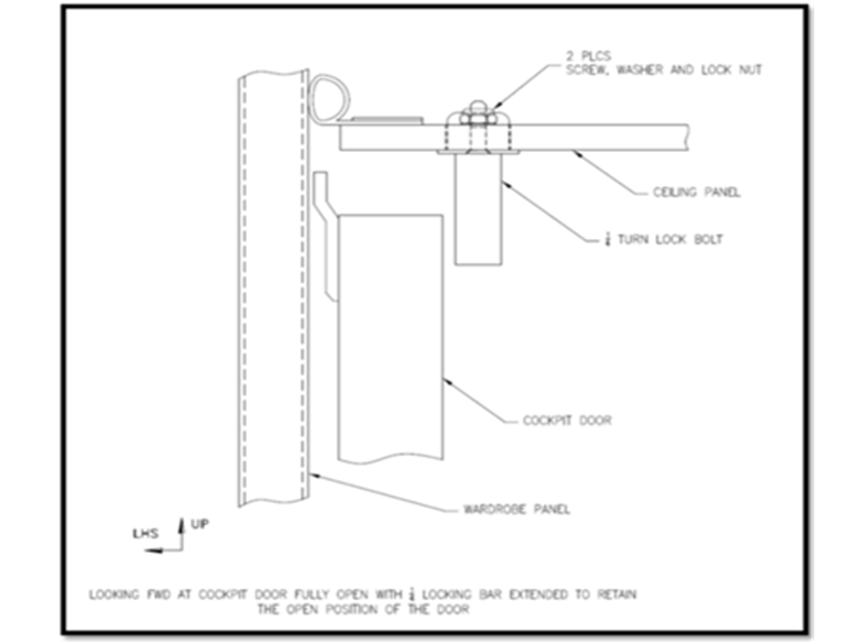
Instalación del pestillo de retención de la puerta de la bañera
Instalación del pestillo de retención de la puerta de la bañera
Contacte con nosotros acerca de 'Instalación del pestillo de retención de la puerta de la bañera'